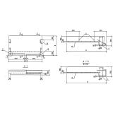
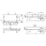
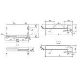
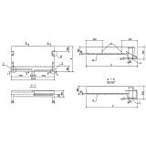
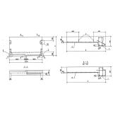
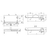
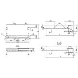
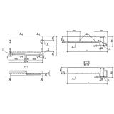
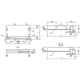
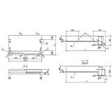
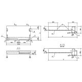
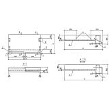
Лестничные площадки железобетонные
1. Описание и применение
Лестничные площадки устанавливаются сверху и снизу каждого лестничного марша. В зависимости от типа они могут применяться для высотных зданий и коттеджей, для общественных и технических помещений, выстроенных из любых материалов, включая бетонные блоки, кирпич и панели. Устанавливаются такие изделия одновременно со стенами, а некоторые типы (например, ребристые) могут снабжаться специальной консолью для опирания непосредственно на стену. Площадки должны разделяют каждые 18 ступеней лестничного марша и помогают организовывать переходы между ними. Такие изделия обладают высокой несущей способностью и часто применяются в постройках с интенсивным движением. Удобство их использования также обусловлено хорошей пропускной способностью и экономичностью: на лестничные площадки цена устанавливается довольно выгодная.
В любом здании, будь то многоэтажный жилой дом, или индустриальная постройка, без лестницы не обойтись. Условия, в которых применяют лестничные площадки железобетонные, редко бывают агрессивными: изделия функционируют внутри помещения и не нуждаются в высокой стойкости к погодным явлениям. Несмотря на это такие изделия легко переносят перепады температуры и сильные морозы, а также обладают стойкостью к коррозии и могут служить очень долго. Железобетонные площадки экологичны: они отвечают всем санитарно эпидемиологическим нормам и не несут опасности здоровью людей.
Чтобы обеспечить надежность и долговечность строительства, следует очень тщательно подходить к подбору материалов. Компания «Ассортимент ЖБИ» уже много лет обеспечивает своих клиентов по всей стране качественной продукцией. Обращайтесь к нам, если желаете лестничные площадки купить на действительно приятных условиях. Мы позаботимся о том, чтобы снабдить Вас всей необходимой информацией касательно товаров: звоните на бесплатный номер 8 (800) 500-22-52 или пишите на электронный адрес info@tdajbi.ru и задавайте нашим консультантам любые интересующие вопросы. Кроме того, удобная система навигации на сайте поможет Вам быстро ознакомиться с каталогом своего города (выбрать его можно в правом верхнем углу экрана) и даже оформить заказ прямо сейчас, заполнив простую форму в режиме онлайн. «Ассортимент ЖБИ» поставляет лестничные площадки, размеры и марки которых представлены широчайшим номенклатурным рядом, благодаря чему Вы наверняка сможете найти у нас именно то, что нужно.
2. Изготовление
а) Способы
Изготовление лестничных площадок – это длительный трудоемкий процесс со множеством тонкостей. Основными условиями для выпуска действительно качественной продукции является использование надежного оборудования и следование официальным стандартам производства. Компания «Ассортимент ЖБИ» располагает собственными заводами и лабораториями для проверки качества, где применяются самые современные технологии. Изготовление ЖБ-площадок можно разделить на несколько стадий: монтаж каркаса, подача бетонной смеси, формование и термическая обработка (сушка). Каждый этап имеет свои особенности. При монтаже каркаса для соединения стальных прутков и закладных элементов применяется метод контактно-точечной сварки. Смесь подается немного подсушенной и покрывает элементы армирования на 15-20 мм. При формовании к производственным платформам подключают вибрационные столы, что позволяет добиться максимальной прочности изделия, гладкости его поверхности и правильности геометрических форм. Сушка нужна для достижения площадками необходимого уровня морозостойкости.
б) Материалы
Бетонная смесь и усиливающие элементы конструкции лестничных площадок от нашей компании изготавливаются из качественного сырья, эксплуатационные характеристики которого продиктованы нормативными и техническими документами. Смесь состоит из портландцемента (основное связующее), мелкофракционного песка и гравийного щебня (заполнители для морозостойкости), различных пластификаторов и очищенной воды. Марка по прочности на сжатие берется М200. Показатели стойкости к влаге и перепадам температуры могут варьироваться в зависимости от условий, в которых будут задействованы изделия. Сталь для прутков отвечает классам А и Вр. Все элементы армирования покрываются антикоррозийными веществами маслянистого или грунтового типа.
в) По какому стандарту
В каталогах «Ассортимента ЖБИ» представлено большое разнообразие различных видов лестничных площадок. Ребристые, плоские, полуплощадки – разновидностей очень много. Производство каждого из типов регламентирует определенный норматив: соответствующая Серия, ГОСТ или ТУ. Наша компания выпускает сертифицированную продукцию: все товары подвергаются тщательному обследованию на наличие любых внешних или технических изъянов, подробно маркируются, получают технические паспорта и только после этого поступают на склад или отправляются к заказчику. Мы заботимся о своей репутации надежного производителя и стремимся обеспечить своих клиентов лучшими материалами.
3. Упаковка, транспортировка и складирование
Лестничные площадки хранятся на крытых оборудованных складах, со специально подготовленным грунтом. Их укладывают штабелями высотой не более 2,5 м и изолируют деревянными досками или фанерными листами (минимальная толщина – 40 мм). Погрузочно-разгрузочные работы осуществляются посредством использования подъемной техники. Для перевозки продукция тщательно фиксируется в кузове и также прокладывается досками. Такие крупногабаритные материалы чаще всего транспортируются по воде на паромах, или по железной дороге, однако применение грузовых автомобилей также возможно. Для всех типов работ «Ассортимент ЖБИ» привлекает опытный подготовленный персонал. Мы оперативно доставляем продукцию в любую точку страны, и гарантируем заказчикам самые высококачественные лестничные площадки.

