Косоуры лестничные
1. Описание и применение
Косоуры лестничные применяются в качестве опорных элементов при постройке сборных лестничных конструкций. Причин для того, чтобы отдать предпочтение такому способу организации спуска и подъема может быть несколько. Главная – ограниченность в пространстве и невозможность применять подъемные краны для установки цельных лестничных маршей. Такая ситуация часто возникает при капитальном ремонте или реконструкции домов, когда косоуры железобетонные позволяют быстро и без особых сложностей смонтировать лестницу. Также такие изделия нередко используют для постройки спусков с автомобильных и пешеходных мостов, дорожных возвышений и прочих путепроводов. Высокие эксплуатационные характеристики дают возможность применять сборные лестничные конструкции во многих видах строительства.
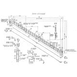
Технически косоуры лестничных маршей представляют собой длинные ребристые балки с пазами для установки наборных ступеней и фризовых элементов. Высокие показатели их прочности обусловлены использованием тяжелого бетона армированного стальным каркасом. Балки крепят с двух концов и применяют вместе с одноразмерными элементами, такими как лестничные площадки и ступени. Угол между косоуром и поверхностью составляет 45 градусов. Установки данного типа хороши своей стойкостью к воздействиям агрессивных погодных условий, высокой пропускной способностью (подходят для эксплуатации как несколькими людьми, так и целой толпой), а также надежностью и долговечностью.
Если Вы ищете опытного проверенного поставщика, у которого можно выгодно купить косоуры железобетонные, тогда добро пожаловать в компанию «Ассортимент ЖБИ». Мы располагаем собственным налаженным производством и снабжаем материалами строительные компании по всей стране. Независимо от региона, в котором находится Ваш проект, с нами Вы всегда можете рассчитывать на скорую доставку продукции и ее высочайшее качество. Просто выберете свой город и ознакомьтесь с широким разнообразием марок и видов лестничных элементов в нашем каталоге. Удобная опция заказа в режиме онлайн и бесплатные консультации по телефону 8 (800) 500-22-52 сделают сотрудничество еще более приятным. Связаться с компанией также можно, написав на электронную почту info@tdajbi.ru: наши специалисты всегда будут рады ответить на все Ваши вопросы и помочь с выбором типоразмеров.
2. Изготовление
а) Способы
Изготовление качественных и надежных материалов – трудоемкий процесс, требующий постоянного контроля, а также применения современных технологий и надежного оборудования. При производстве железобетонных косоуров «Ассортимент ЖБИ» тщательно следит за соблюдением требований действующий нормативных документов и выполняет все правила безопасности. На первом этапе изготовления в промасленные для удобного изъятия формы монтируют стальной каркас изделия. Он состоит из нескольких прутков и закладных элементов, соответствующих техническому проекту. Как правило, в верхнюю часть балки устанавливают два тонких стальных стержня, а в нижнюю идут более толстые прутки, предварительно напряженные электротермическим способом или на домкратах. Все детали соединяются методом контактно-точечной сварки, так что готовое изделие представляет собой прочный цельный монолит. Когда каркас готов, элементы армирования заливают однородным бетоном, слой которого должен покрывать метал как минимум на 20 мм. После формования и сушки косоуры отправляются в специальные лаборатории для прохождения приемо-сдаточных испытаний и нанесения маркировки.
б) Материалы
Выбор сырья также регулируется официальными стандартами. Основой бетонной смеси служат престижные марки портландцементов. Мелкофракционный песок и отборный гравийный щебень в качестве заполнителей помогают добиться необходимого уровня морозостойкости, а различные пластификаторы повышают эксплуатационные характеристики. Элементы армирования делаются из стали высоких классов А и Вр. Все металлические детали обрабатываются специальным антикоррозийным веществом. Класс бетонной смеси по прочности на сжатия берется не менее В15. Правильный выбор материалов и надежные технологии позволяют выпускать стойкие к погодным условиям, гниению и обрастанию, надежные ЖБ-элементы.
в) По какому стандарту
Как уже упоминалось выше, мы производим продукцию в полном согласии с действующими техническими документами. Для лестничных косоуров это Серия 3.503.1-96, в которой содержатся все необходимые рабочие чертежи и требования к производственным условиям. Соответственно с данным регламентом, сертификаты качества продукции выдаются лишь после завершения проверок и испытаний, которые «Ассортимент ЖБИ» осуществляет в собственных лабораториях. Все документы передаются в руки заказчика при доставке самих товаров, а маркировка, наносимая на боковые стороны изделий несмываемой краской, указывает на тип и основные характеристики косоура.
3. Упаковка, транспортировка и складирование
Для хранения ЖБ-материалов наша организация использует специальные крытые площадки, где отсортированную по маркам продукцию укладывают в штабеля и послойно изолируют деревянными досками. Для погрузочных работ привлекается подъемная техника, а сама перевозка может осуществляться тремя разными способами: на грузовых автомобилях, на паромах и на поездах. При транспортировке изделия надежно фиксируются с помощью стальных лент и также прокладываются изоляционными материалами. Компания «Ассортимент ЖБИ» обеспечивает своим клиентам не только оперативную доставку и полную сохранность изделий, но и их доступность: установленная на косоуры железобетонные цена понравится и крупной строительной организации, и частным лицам, желающим построить себе загородный коттедж. Приобретя материалы у нас, Вы точно не пожалеете, так к чему медлить? Обращайтесь уже сейчас и заказывайте для своего проекта лучшие косоуры лестничные.

