Отгружено ЖБИ: всего -
000 000
тонн; за 2025 год -
00 000
тонн
Посмотреть
Заключено договоров: всего -
0 000
шт.; за 2025 год -
000
шт.
Единый номер:
8 (800) 500-22-52
Выберите город
Благовещенск
Владивосток
Екатеринбург
Иркутск
Казань
Кемерово
Краснодар
Красноярск
Москва
Нижний Новгород
Новосибирск
Омск
Пермь
Ростов-на-Дону
Самара
Санкт-Петербург
Симферополь
Сургут
Тюмень
Хабаровск
Челябинск
Ваш город «
»?
Да
Нет
Выберите город
Заказ онлайн
Корзина:
0 шт.
Корзина
0
шт.
Расчитать
О нас
О компании
Документация
Судебная практика
Преимущества
Вопросы/ответы
Портфолио
Работа в цифрах
Прямой эфир с производства
Каталог
Каталог по группам
Условия доставки
Контакты
Найти
Каталог по группам
Главная
Каталог по группам
Панели стеновые, Шахты лифтов,...
Шахты лифтов железобетонные
Панели лифтовых шахт Серия ИИ ...
Блоки шахт лифтов Серия 1.089.1-1
Блоки шахт лифтов Серия 1.189-6
Блоки шахт лифтов Серия 1.189.1-11
Блоки шахт лифтов Серия 1.189.1-12с
Блоки шахт лифтов Серия 1.189.1-8
Блоки шахт лифтов Серия 1.189.1-9
Блоки шахт лифтов Серия 1.289.1-1
Блоки шахт лифтов верхние ГОСТ 17538-82
Блоки шахт лифтов нижние ГОСТ 17538-82
Блоки шахт лифтов средние (основные) ГОСТ 17538-82
Блоки шкафной стенки Серия 3.503-49
Блоки шкафной стенки Серия 3.503.1-53
Объемные элементы шахт лифтов Альбом ИЖ 237
Объемные элементы шахты лифта Альбом РМ 2283
Панели лифтовых шахт Серия ИИ 04-15
Панели перекрытия Серия 1.089.1-1
Панели шахт лифтов Серия 1.089.1-1
Панели шахт лифтов Серия 1.089.1-2
Панели шахт лифтов Серия 1.289.1-2
Плита приямка Серия 1.189.1-8
Плиты лифтового холла Альбом ИЖ 4.2-1
Плиты перекрытий Серия 1.189-6
Плиты перекрытий шахт Серия 1.489-1
Плиты перекрытия Серия 1.189.1-8
Плиты перекрытия над шахтами лифтов ГОСТ 17538-82
Плиты перекрытия над шахтой лифта Серия 86 и 85
Плиты перекрытия над шахтой лифта Серия ИИ 03-02
Плиты перекрытия шахт Серия 1.089.1-2
Плиты перекрытия шахт Серия 1.189.1-11
Плиты перекрытия шахт Серия 1.189.1-12с
Плиты перекрытия шахт лифтов Серия 1.189.1-9
Плиты покрытия Серия ИИ 04-15
Плиты приямка Серия 1.189.1-11
Плиты приямка Серия 1.189.1-12с
Плиты приямка монолитные Серия 1.189.1-9
Плиты фундамента Серия 1.189.1-11
Плиты фундамента Серия 1.189.1-12с
Плиты фундамента Серия 1.189.1-8
Стенки шахт лифтов Серия 03-02 Альбом 65
Тумбы ГОСТ 17538-82
Тумбы Серия 1.189-6
Тумбы Серия 1.189.1-8
Тумбы Серия 1.189.1-9
Шахтовые затяжки (ТП 401-11-83 и ТУ 67-08-173-93, р.ч.Р 10-0,99-1)
Шахты лифтов Серия 8641.18.19
Шахты лифтов Серия ИИ 01-04
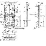
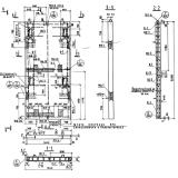
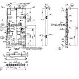
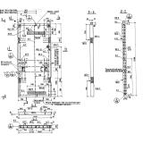
Панели лифтовых шахт Серия ИИ 04-15
1660х140x3280
ШЛ 17-33
30 240
₽/шт.
В корзину
1660х140x3280
ШЛ 17-33 п
15 840
₽/шт.
В корзину
1660х140x3280
ШЛ 17-33 п-1
19 480
₽/шт.
В корзину
1660х140x3280
ШЛ 17-33 п-2
19 600
₽/шт.
В корзину
1660х140x3280
ШЛ 17-33-1
29 560
₽/шт.
В корзину
1660х140x3280
ШЛ 17-33-1-1
30 080
₽/шт.
В корзину
1660х140x3280
ШЛ 17-33-2
30 240
₽/шт.
В корзину
1660х140x3280
ШЛ 17-33-3
30 240
₽/шт.
В корзину
1660х140x3280
ШЛ 17-33-4
30 240
₽/шт.
В корзину
1660х140x3280
ШЛ 17-33-5
30 240
₽/шт.
В корзину
1660х140x3280
ШЛ 17-33-6
30 240
₽/шт.
В корзину
1660х140x3580
ШЛ 17-36
33 040
₽/шт.
В корзину
1660х140x3580
ШЛ 17-36 п
18 640
₽/шт.
В корзину
1660х140x3580
ШЛ 17-36 п-1
22 200
₽/шт.
В корзину
1660х140x3580
ШЛ 17-36 п-2
22 400
₽/шт.
В корзину
1660х140x3580
ШЛ 17-36-1
33 040
₽/шт.
В корзину
1660х140x3580
ШЛ 17-36-1-1
33 040
₽/шт.
В корзину
1660х140x3580
ШЛ 17-36-2
33 040
₽/шт.
В корзину
1660х140x3580
ШЛ 17-36-2-1
33 040
₽/шт.
В корзину
1660х140x3580
ШЛ 17-36-3
33 040
₽/шт.
В корзину
1660х140x3580
ШЛ 17-36-3-1
33 040
₽/шт.
В корзину
1660х140x3580
ШЛ 17-36-4
33 040
₽/шт.
В корзину
1660х140x3580
ШЛ 17-36-4-1
33 040
₽/шт.
В корзину
1660х140x3580
ШЛ 17-36-5
33 040
₽/шт.
В корзину
Показать еще
1
2
3
4
5
>
>|
24 из 117 (страниц 5)
Заказать звонок