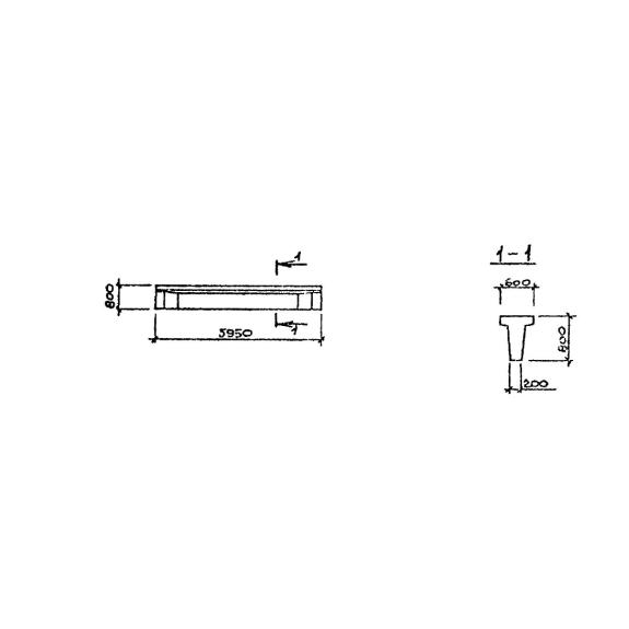
О товаре:
- Длинна: 5950 мм.
- Ширина: 600 мм.
- Высота: 800 мм.
- Вес: 3500 кг.
- ГОСТ, Серия: Серия 1.426.1-8 скачать
- Объем бетона: 1,4 м3
- Геометрический объем: 2,856 м3
Стандарт изготовления изделия: Серия 1.426.1-8
Балки БК 6-6 АIIIвт (1.426.1-8) – железобетонные особопрочные изделия, используемые в строительстве путей движения кранов грузоподъемностью 32 тонны различного назначения и предназначенные для перекрытия пролетов от 6 до 12 метров. Конструктивно балка представляет собой брус сложной трапециевидной формы. Элемент запроектирован на легкий и средний режим работы грузоподъемной техники.
1. Варианты написания маркировки
В различной документации может быть представлено несколько вариантов написания марки, все они считаются правильно указанными:
1. БК 6-6 АIIIвт;
2. БК 6.6 АIIIвт.
2. Основная сфера применения
Подкрановые балки БК 6-6 АIIIвт (1.426.1-8) с проложенными под ними рельсами образуют пути движения мостовых, башенных, козловых и консольно-козловых кранов. Средняя расчетная нагрузка от одного колеса автомашины составляет 36,5 тыс. Надежное соединение с опорными колоннами создается за счет значительной массы балки, благодаря чему удается построить прочный пространственный каркас подкрановых путей.
Эксплуатация балок БК может осуществляться как в отапливаемых, так и неотапливаемых зданиях с железобетонным каркасом пролета 16 и 24 метра. Допускается использовать балочные изделия в строительстве эстакад, располагаемых на открытом воздухе. Балки данного типа запроектированы на работу во всех климатических регионах России, в том числе в несейсмических и сейсмических районах активностью до 9 баллов включительно по шкале Рихтера.
3. Обозначение маркировки
Знаки условного обозначения формируют по условиям действующего стандарта - Серии 1.426.1-8. В маркировке БК 6-6 АIIIвт (1.426.1-8) отображают основные данные, которые позволяют классифицировать изделия по видам и маркам:
1. БК – тип конструкции, балка подкрановая;
2. 6 – перекрываемый пролет подкрановых путей, указывается в метрах с округлением до целого числа;
3. 6 – группа несущей способности балки;
4. АIIIв – категория напрягаемой арматуры,
5. т – пролет у температурного шва.
Знаки обозначения пишут черной несмываемой краской на торцевой грани балки. Маркировка не должна стираться на протяжении всего срока эксплуатации подкрановых путей.
Технические характеристики:
Длина = 5950;
Ширина = 600;
Высота = 800;
Вес = 3500;
Объем бетона = 1,4;
Геометрический объем = 2,856.
4. Основные материалы для применения
Подкрановые балки БК 6-6 АIIIвт (1.426.1-8) с изготавливают из конструкционных и плотных бетонов класса прочности В30 и выше. Материалы подбирают в соответствии с требованиями рабочего проекта и конкретными условиями эксплуатации по стойкости к действию критически низких температур, водонепроницаемости и трещиностойкости. Допускается эксплуатация балок в районах с расчетной зимней температурой до -55 градусов. Бетоны должны обладать морозостойкостью марки F300.
Прочностные показатели повышают армированием балок стальными конструкциями. Для этого используют продольную арматуру класса А-400, А-500 и А-300в с предварительным напряжением согласно условиям ТУ 14-2-793-88. В качестве поперечной арматуры применяют стержни диаметром 6-18 мм без напряжения класса стали А-300 согласно ГОСТ 5781-82. Для крепления рельсовых конструкций балка имеет арматурные выпуски и закладные детали. Стальные узлы покрывают слоем бетона, а те части стального каркаса, которые не соприкасаются с бетоном, подвергают антикоррозионной защите.
5. Транспортировка и хранение
Перевозка массивных и длинных подкрановых балок БК 6-6 АIIIвт (1.426.1-8) – ответственное дело, требующее решения многих вопросов:
1. Во-первых, во время транспортирования железобетонные изделия не защищены от воздействия атмосферы, поэтому требуется уделить особое внимание в плане проработки маршрута доставки, в некоторых случаях требуется согласовать проезд, так как в некоторых городах проезд с подобным грузом запрещен.
2. Во-вторых, погрузо-разгрузочные работы затруднены ввиду массивности балки, поэтому требуется использовать грузоподъемную спецтехнику. Каждый элемент после укладки четко фиксируется стальной проволокой, чтобы исключить смещение и падение, и, соответственно, неминуемую порчу ЖБ-изделия.
3. В-третьих, во время доставки железобетонной продукции требуется соблюдать меры предосторожности и технику безопасности, поэтому все работы должен выполнять только квалифицированный персонал. Только в этом случае удастся доставить балки в сохранном для монтажа состоянии.
4. Для перевозки балок данного типа допускается использовать автомобильный, железнодорожный или речной спецтранспорт. Груз сопровождается специальной документацией.
Складирование балок осуществляется в штабелях, в котором сформировано не менее 2-3 рядов. Пачки укладывают на подготовленное выровненное основание, а слои отделяют деревянными инвентарными подкладками. Изделия укладывают из расчета удобного захвата и подъема каждого элемента.

