О товаре:
- Длинна: 2380 мм.
- Ширина: 1350 мм.
- Высота: 150 мм.
- Вес: 963 кг.
- ГОСТ, Серия: Серия ИИ 03-02 скачать
- Объем бетона: 0,385 м3
- Геометрический объем: 0,4819 м3
Стандарт изготовления изделия: Серия ИИ 03-02
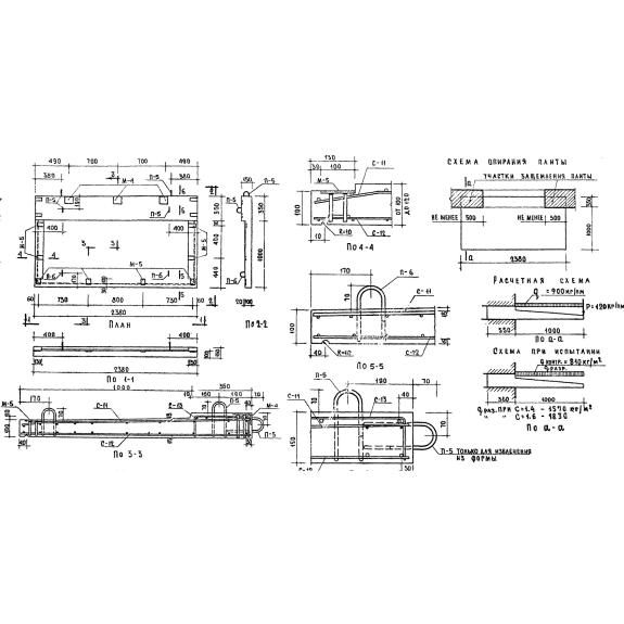
Плиты лоджий ПЛ 24-5 представляют собой унифицированные строительные материалы, имеющие прямоугольную форму. Одна из продольных граней оборудована выступом с закладными деталями, предназначенным для опирания элемента в каркасе здания. При рассмотрении поперечного сечения можно заметить, что изделие имеет скос, визуально сужающий одну торцевую грань в сравнении с другой.
Применяются унифицированные плиты лоджий в сфере гражданского строительства при возведении девятиэтажных жилых домов и общественных зданий. Конструкции устанавливаются в стенах из крупных блоков и позволяют обустроить пространство лоджии. Для удобства осуществления погрузочно-разгрузочных работ в теле элемента предусмотрено наличие строповочных петель. Изделия запроектированы на расчетную нагрузку 520 кг/м2 и дополнительную нагрузку 100 кг/пм от веса металлических ограждающих конструкций и цветочниц.
Маркировочные обозначения
На изделия в обязательном порядке необходимо наносить знаки, цель которых заключается в демонстрации ключевых характеристик. Символы следует отображать масляной краской, устойчивой к температурным колебаниям и атмосферным осадкам. Маркировка в значительной степени сокращает время поиска нужных по типовому проекту конструкций. Совокупность символов ПЛ 24-5 имеет следующую расшифровку:
1. ПЛ - тип конструкции - плита лоджий;
2. 24 - длина (дм);
3. 5 - порядковый номер типоразмера выступающей части изделия.
Не допускается внесение произвольных изменений в маркировочные обозначения.
Особенности производства
Главным нормативным документом, регламентирующим последовательность изготовления плит лоджий ПЛ 24-5, является Серия ИИ 03-02. По условиям стандарта в качестве главного материала следует использовать бетон марки М200. Физико-химические показатели бетонной смеси, такие как морозостойкость и водонепроницаемость следует подбирать под каждый конкретный случай отдельно с учетом климатических особенностей в регионе строительства. Для гарантии сохранения точных геометрических пропорций конструкций, рекомендовано осуществлять изготовление в стальных опалубочных формах. Это позволит обеспечить точность представленных на рабочих чертежах характеристик.
Армируются изделия сетками, выполненными с помощью контактной точечной сварки в местах пересечения стержней. Для их изготовления используется горячекатаная сталь класса AIII с нормативным сопротивлением 4000 кг/см2. Дополнительно применяется холоднотянутая проволока класса BI по ГОСТ 6727-53 с нормативным сопротивлением 5500 кг/см2. Подъемные петли, выполненные из круглой стали класса AI по ГОСТ 5781-61 с диаметром 10мм с нормативным сопротивлением 2400 кг/см2, необходимо завести за нижние стержни арматурной сетки. Закладные детали следует изготавливать из полосовой стали с нормативным сопротивлением 2400 кг/см2, соответствующей ГОСТ 103-57. Приварку анкеров закладных деталей следует производить под слоем флюса. Мероприятия по антикоррозионной защите конструкций следует проводить в соответствии с требованиями СНиП III-B.6-62. Рекомендуется покрывать металлические закладные детали слоем цинка.
Транспортировка и хранение
Складирование и транспортировка плит лоджий ПЛ 24-5 должны осуществляться с соблюдением правил и норм по технике безопасности и рекомендаций СНиП I-B.5-62. Укладываемые штабеля должны в обязательном порядке прокладываться инвентарными подкладочными материалами, исключающими вероятность возникновения продольных и поперечных смещений.

