О товаре:
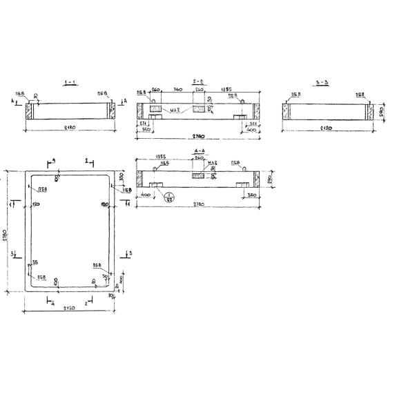
- Длинна: 2780 мм.
- Ширина: 2120 мм.
- Высота: 290 мм.
- Вес: 745 кг.
- ГОСТ, Серия: Альбом ИЖ 237 скачать
- Объем бетона: 0,298 м3
- Геометрический объем: 1,7091 м3
Стандарт изготовления изделия: Альбом ИЖ 237
Объемные элементы шахт лифтов ШЛГ 50п-3 в1 представляют собой крупные бетонные пустотелые короба, отличительной особенностью которых является наличие отверстий прямоугольной формы на боковых гранях. Конструкции по Альбому ИЖ 237 запроектированы двух типов: основные блоки и дополнительные (доборные) элементы меньших размеров.
Высокопрочные объемные блоки шахт лифтов широко применяются при строительстве многоэтажных жилых домов. Они используются при обустройстве лифтовых шахт, обеспечивающих быстрое и удобное перемещение жильцов между этажами. Благодаря монолитности конструкций сборка шахты осуществляется за короткий период времени, что позволяет сдать строящийся объект в эксплуатацию в запланированные сроки. Разнообразие конструктивных вариантов позволяет применять изделия для различных типовых проектов. При разработке элементов учитывались рабочие чертежи следующих нормативных документов: РС 0462-77, ИЖ 28 и НК 187-03. Элементы отвечают требованиям СНиП II-21-75.
Маркировочные обозначения
С целью упрощения поиска железобетонных конструкций на складских территориях применяются специальные комбинации символов, содержащие основные характеристики. Сочетание цифр и букв ШЛГ 50п-3 в1 имеет следующее значение:
1. ШЛ - объемный блок шахты лифта;
2. 50 - грузоподъемность (в сотнях кг);
3. п - размещение противовеса относительно входа (с - сзади; сл - слева; п - справа);
4. 3 - высота изделия (дм);
5. в1 - технологический вариант изделия.
При наличии буквы «г» в маркировочном обозначении подразумевается, что лифт грузопассажирский. Запрещается изменять маркировку.
Особенности производства
С подробным процессом производства объемных элементов лифтовых шахт ШЛГ 50п-3 в1 можно ознакомиться в Альбоме ИЖ 237. Основной маркой бетона по прочности выступает М200 с морозостойкостью F50.
Армирование глухих участков конструкций осуществляется с помощью одинарных сеток, специально разработанных для упрощения перенастройки сварочных машин, что ускоряет процесс производства элементов с обеспечением высокого качества готовой продукции. Они устанавливаются в проектное положение в форме до заливки бетонной смеси на специальные пластмассовые фиксаторы. Для производства сеток используется проволока класса BpI, а также стальные стержни класса AI.
Изготовление строповочных петель рекомендуется осуществлять из стали класса AI марок ВСт3пс2 либо ВСт3сп2, которые должны отвечать требованиям ГОСТ 380-71. Закладные детали производятся из листового проката. Класс стали AIII применяется для изготовления анкеров к закладным элементам в соответствии СН 393-78. Качество сварных соединений необходимо тщательно проверять с учетом рекомендаций, прописанных ГОСТ 10922-75.
Величины допустимых отклонений следует сверять по ГОСТ 17538-82. Контрольные испытания нужно проводить с соблюдением требований ГОСТ 8829-85 неразрушающими методами. По итогам проверок обязательно снабжение партий сертификатами соответствия с подтверждением качества и отражением данных об испытаниях.
Транспортировка и хранение
Для продолжительного эксплуатационного срока объемных элементов шахт лифтов ШЛГ 50п-3 в1 важно соблюдать правила транспортировки и хранения. Складировать и перевозить изделия следует в рабочем положении в один ряд. Необходимо обеспечить надежную опору для исключения механических повреждений из деревянных подкладок, размещать которые следует под углами конструкций.

