О товаре:
- Длинна: 4475 мм.
- Ширина: 1150 мм.
- Высота: 1500 мм.
- Вес: 1930 кг.
- ГОСТ, Серия: ГОСТ 9818-2015 скачать
- Объем бетона: 0,77 м3
- Геометрический объем: 7,7194 м3
Стандарт изготовления изделия: ГОСТ 9818-2015
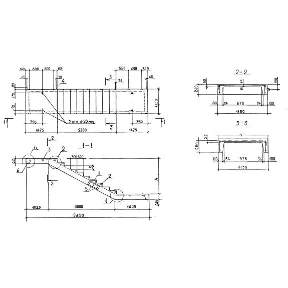
Лестничный марш ребристый с полуплощадками ЛМП 57-11-15-5-3 (ГОСТ 9818-2015) представляет собой универсальный строительный элемент, по внешнему виду напоминает диагональную плиту с выступами, опирающуюся на две плиты, которые размещены параллельно земной поверхности. Изделия предназначены для соединения этажей зданий жилого и общественного назначения. Данная наклонная конструкция является цельной, состоит из ряда ступеней, дополнительно имеются полуплощадки. Благодаря такой конструктивной особенности, сооружения возводятся довольно быстро. Изделия не только прочные, но и надежные, долговечные, поэтому пользуются таким широким спросом.
Расшифровка маркировки
Маркирование лестничных маршей осуществляется согласно ГОСТ9818-2015. Маркировка состоит из буквенно-цифровых групп. Благодаря специальной маркировке, можно с легкостью найти необходимую продукцию на складских помещениях. Знаки ЛМП 57-11-15-5-3 (ГОСТ 9818-2015) имеют следующую расшифровку:
1. ЛМП – тип изделия;
2. 57 – длина;
3. 11 – ширина;
4. 15 – высота;
5. 5 - расчетная нагрузка.
В маркировке могут быть указаны дополнительные цифровые индексы: «1» – удлиненная полуплощадка верхняя; «2» – удлиненная полуплощадка нижняя; «3» – нижняя полуплощадка отсутствует. Маркировочные надписи наносят на боковую поверхность маршей черной несмываемой краской. Необходимо указать дату выпуска, номер партии, наименование завода, массу изделия и штамп ОТК.
Основные характеристики и изготовление
В ГОСТ 9818-2015 заложены все основные требования по производству лестничных маршей, а также представлены все необходимые чертежи. Основой выступает тяжелый бетон марки М300 по прочности на сжатие. Морозостойкость устанавливается F100,а водонепроницаемость запроектирована марки W2. Толщина защитного слоя бетона должна строго соответствовать всем требованиям, указанным на проектных чертежах. Высокие качественные показатели материалов, позволяют применять марши в различных климатических зонах. Конструкции армируются сетками и каркасами из стержневой горячекатаной арматуры класса A-I, A-III по требованиям ГОСТ 5781-82, а так же используют обыкновенную проволоку Bp-I. Все арматурные элементы соединяют при помощи контактной точечной сварки. В теле железобетонного изделия обязательно должны быть закладные детали, предназначенные для сопряжения с другими элементами. Для подъема и удобства монтажа предусмотрены монтажные петли. Проводятся мероприятия по антикоррозионной защите всех металлических элементов, закладных деталей специальными растворами. Готовые марши принимаются техническим отделом, который тщательно проверяет не только поверхность конструкций, но и геометрические параметры сравнивает с проектными чертежами. Не должно быть никаких сколов, трещин и других дефектов на изделиях, только в этом случае они допускаются к отпуску и снабжаются паспортом качества.
Транспортировка и хранение
Железобетонные изделия складируют на выровненных площадках и укладывают в положении «на ребро». Необходимо, чтобы отчетливо просматривалась маркировка, высота штабеля не должна превышать 2,5 метров. Между лестничными маршами в местах, где находятся подъемные петли, следует прокладывать деревянные подкладки. Перевозить конструкции разрешается на автомобильном и железнодорожном транспорте. Выгружать продукцию следует с особой осторожностью, чтобы не нарушить устойчивость остающихся в транспортном средстве изделий. Погрузка и разгрузка осуществляется с помощью специализированного оборудования, ни в коем случае нельзя сбрасывать и перемещать изделия волоком.

