О товаре:
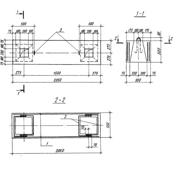
- Длинна: 2050 мм.
- Ширина: 550 мм.
- Высота: 500 мм.
- Вес: 1180 кг.
- ГОСТ, Серия: Серия 1.100.1-7 скачать
- Объем бетона: 0,47 м3
- Геометрический объем: 0,5637 м3
Стандарт изготовления изделия: Серия 1.100.1-7
Свайный оголовок ОС 21-6-50 представляет собой прямоугольную железобетонную конструкцию. Согласно Серии 1.100.1-7 запроектировано два вида оголовков с одним или двумя отверстиями трапециевидной формы. Они предназначены для последующего размещения в них сваи.
Высокопрочные оголовки свай применяются при возведении многоэтажных жилых зданий (5-9 этажей), запроектированных 97 домостроительной серией. Они играют важную роль при обустройстве фундамента каркаса здания на свайном основании. После размещения свай согласно типовому проекту на них размещаются оголовки и замоналичиваются бетоном класса В15, симметрично по отношению к оси сваи. Допустимое отклонение верхней части оголовка от заданной отметки не должно превышать значение в 1 см. Использование изделий в совокупности свайного фундамента популярно на территориях с неустойчивыми грунтами. Конструкции разрабатывались с учетом требований СНиП 3.02.01-87 и СНиП 2.03.01-84. Допускается эксплуатация изделий в районах с температурой наружного воздуха не ниже -40 градусов с нормальным ветровым давлением до 0,38 кПа.
Маркировочные обозначения
Для простоты подбора необходимых по типовому проекту элементов, строительными организациями были разработаны специальные маркировочные обозначения. Они состоят из символов, отражающих ключевые параметры. Совокупность цифр и букв ОС 21-6-50 имеет следующее значение:
1. ОС - оголовок сваи;
2. 21 - длина (дм);
3. 6 - ширина (дм);
4. 50 - высота (см).
Длина оголовка свыше 60 см говорит о наличии двух отверстий, предназначенных под размещение свай. На поверхности изделия допускается указывать массу и дату производства. Запрещено изменять маркировочное обозначение.
Особенности производства
Согласно нормативу (Серии 1.100.1-7) для производства железобетонный свайных оголовков ОС 21-6-50 рекомендуется применять тяжелый бетон краса по прочности на сжатие В15 (марки М200). Характеристики водонепроницаемости и морозостойкости рекомендуется подбирать с учетом климатических особенностей региона строительства. Для обеспечения высокой степени долговечности и надежности важно соблюдать проектную величину защитного слоя бетона.
Высокие прочностные характеристики достигаются благодаря размещенным внутри изделия пространственным каркасам. Они производятся из горячекатаной арматурной стали класса AIII по ГОСТ 5781-82 из стержней диаметром 12 и 6 мм. Упрощающие монтаж строповочные петли изготавливаются из стали класса AI (стержней в 10 мм). Металлические компоненты проходят обязательную противокоррозионную обработку.
Комплекс приемо-сдаточных испытаний основывается на рекомендациях ГОСТ 8829-85. Изделия в обязательном порядке проходят проверку на прочность и трещиностойкость. Не допускаются к эксплуатации конструкции, имеющие на поверхности различные сколы и трещины, а также оголенное армирование. Элементы с подобными повреждениями отбраковываются и складируются отдельно. Сертификаты выдаются исключительно на качественные изделия.
Транспортировка и хранение
Складирование железобетонных свайных оголовков ОС 21-6-50 рекомендуется осуществлять в рабочее положение на деревянные опоры. По высоте допускается укладка не более двух изделий. Между конструкциями обязательна прокладка деревянных подкладок, превышающих величину выступающих частей (петель). Для погрузочно-разгрузочных работ следует использовать траверсы. Все действия по складированию и транспортировке необходимо согласовывать с требованиями ГОСТ 13015.4-84.

