О товаре:
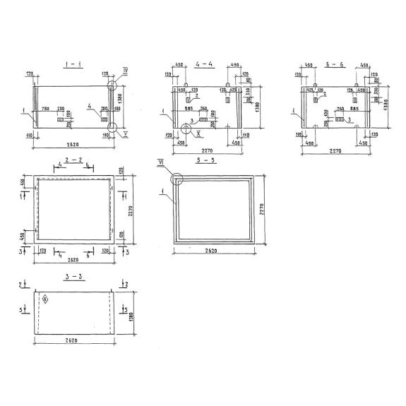
- Длинна: 2270 мм.
- Ширина: 2620 мм.
- Высота: 1380 мм.
- Вес: 3750 кг.
- ГОСТ, Серия: Серия 1.289.1-1 скачать
- Объем бетона: 1,5 м3
- Геометрический объем: 8,2074 м3
Стандарт изготовления изделия: Серия 1.289.1-1
Блок шахты лифта ШЛ 100-14-2 - это индустриальное железобетонное изделие, которое представляет собой прямоугольный полый короб с тонкими стенами. Основное предназначение данного строительного материала - устройство шахт пассажирских лифтов в общественных зданиях до 12 этажей при высоте этажа 3,3 3,6 4,2 метров, возводимых в обычных условиях для строительства.
Номенклатурный список Серии 1.289.1-1 включает в себя блоки с различным размещением противовеса относительно кабины - сзади или сбоку, и, в зависимости от расположения в плане, могут иметь конструкционные особенности в виде проемов, отверстий для прокладки проводов либо для крепления монтажных балок внутри шахты, закладных деталей.
Расшифровка маркировки
Марка железобетонных конструкций состоит из буквенных и числовых кодов, образующих несколько групп значений, отображающих основную информацию об изделии и их особенности. При рассмотрении марки блока ШЛ 100-14-2 можно узнать, что:
1. ШЛ - блок шахты лифта доборный типового этажа;
2. 100 - грузоподъемность лифта в десятках кг;
3. 14 - высота в дм;
4. 2 - порядковый номер изделия для определенного типа шахты при данной высоте блока.
В конце маркировки может проставляться индекс «а», означающий групповую установку лифтов.
На боковой поверхности блоков у нижней опорной плоскости при помощи штампов либо трафаретов наносятся несмываемой краской основные и информационные маркировочные надписи (марка изделия, краткое наименование завода-производителя, дата выпуска, печать ОТК), а так же указываются знаки, определяющие место опирания изделий на подкладки при складировании и транспортировании.
Материалы и производство
Документом, определяющим порядок и стандарты к изготовлению объемных блоков шахт лифтов ШЛ 100-14-2, является Серия 1.289.1-1. Для обеспечения изделиям необходимых физико-механических показателей, надлежит осуществлять их выпуск в условиях заводов ЖБИ с проведением систематического контроля над качеством на всех этапах технологического процесса.
В качестве основы блоков запроектирован тяжелый бетон с классом по прочности на сжатие В25. В состав бетонной смеси должны входить плотные крупнозерновые заполнители, которые существенно уменьшают осадку, повышают надежность и эффективность раствора.
Усиливаются ШЛ 100-28 п арматурными блоками, сборка которых должна выполняться на специальных стендах из плоских и гнутых сеток и каркасов из стали классов АII, АI. В теле данных строительных элементов предусмотрено наличие закладных частей, предназначенных для надежного соединения с примыкающими конструкциями и оборудованием, они изготавливаются из полосовой стали по ГОСТ 103-76.
Готовые конструкции проходят приемку техническим отделом контроля. Регламентировано проводить проверки на точность линейных параметров, положения стальных элементов, толщины защитного слоя бетона, прямолинейность и неплоскостность и внешний вид изделий методами, установленными ГОСТ 13015-75. Лицевые поверхности блоков должны соответствовать категории - А2, нелицевые - А7.
Транспортировка и хранение
Складировать готовые блоки шахты лифтов ШЛ 100-14-2 надлежит на заранее спланированных выровненных площадках. Конструкции устанавливаются в рабочем положении на инвентарные прокладки одинаковой высоты.
Подъем и монтаж таких блоков необходимо выполнять за 4 петли специальной траверсой, исключающей изгиб петель, с соблюдением техники безопасности.
Изделия в кузове транспорта должны быть надежно закреплены, для предотвращения их сдвига, опрокидывания, трения.

