О товаре:
- Длинна: 740 мм.
- Ширина: 300 мм.
- Высота: 150 мм.
- Вес: 60 кг.
- ГОСТ, Серия: Серия СТ 02-18 скачать
- Объем бетона: 0,027 м3
- Геометрический объем: 0,0333 м3
Стандарт изготовления изделия: Серия СТ 02-18
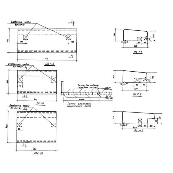
Плиты парапетные ПП 75 (СТ 02-18) - унифицированные строительные изделия. По внешнему виду конструкции представляют собой прямоугольные плиты, в поперечном сечении которых верхняя грань имеет уклон к одной из торцевых сторон. Отличительной особенностью элементов является наличие квадратного выреза, расположенного вдоль всей конструкции на самой узкой стороне. На не лицевой стороне изделия также присутствует по два продольных углубления, величиной 10 мм.
Применяются индустриальные парапетные плиты при строительстве отапливаемых одноэтажных производственных зданий, с высотой этажа до 20 метров. Конструкции укладываются по периметру стеновых панелей и служат дополнительным защитным каркасом для сопротивления вредоносному воздействию окружающей среды и атмосферным осадкам. Геометрические особенности позволяют излишкам жидкости быстро покидать поверхность плит и не застаиваться. Минимальная температура в регионе эксплуатации не должна опускаться ниже отметки -40 градусов. Разработка конструкций в обязательном порядке включает в себя рекомендации и требования НиТУ 123-55.
Маркировочные обозначения
Совокупность цифр и букв в составе маркировочного обозначения принята специально для отражения ключевых характеристик элементов. Они позволяют легко ориентироваться в проектной документации и на складских территориях. Символы ПП 75 (СТ 02-18) расшифровываются следующим образом:
1. ПП - тип изделия, парапетные плиты;
2. 75 - длина (см).
Кроме маркировочных знаков на поверхности изделий может отражаться дата производства, масса и штамп отдела технического контроля. Не допускается внесение произвольных изменений в маркировочное обозначение.
Особенности производства
Производятся парапетные панели ПП 75 (СТ 02-18) на основании нормативного документа - Серии СТ 20-18. Изготовление должно осуществляться с соблюдением геометрических пропорций, указанных в рабочих чертежах. Главным сырьем служит керамзитобетон марки 200. Показатели водонепроницаемости и морозостойкости рекомендуется подбирать исходя из условий конкретного типового проекта и климатической среды в регионе строительства. Формовка плит осуществляется лицевой поверхностью к дну опалубки для гарантии высокого качества готовой продукции и исключения шероховатостей. Не допускается наличие раковин, сколов и трещин на лицевой поверхности строительных материалов.
В теле плит по торцевым сторонам присутствуют деревянные пробки, удаляемые при монтаже для пропуска подъемных петель. Они необходимы для установки рейки, к которой в последующем монтируется водоизоляционный ковер кровли и специальный стальной фартук. Максимально допустимые габаритные размеры пробок не должны превышать 60х50х40 мм. В качестве сырья для пробок следует применять древесину хвойных пород, влажность которой не более 13%.
Для определенного процента изделий из партии обязательно прохождения контрольных проверок, для подтверждения физико-химических свойств. Прошедшие испытания элементы снабжаются паспортами.
Транспортировка и хранение
Складирование и перевозку парапетных плит ПП 75 (СТ 02-18) необходимо осуществлять с соблюдением нормативных рекомендаций и правил по технике безопасности. Важно беречь конструкции от механических повреждений и использовать специальные схемы по укладке конструкций с последующим закреплением в транспортном средстве. Следует бережно относиться к лицевой поверхности конструкций, так как от ее состояния зависит пригодность плит к эксплуатации.

