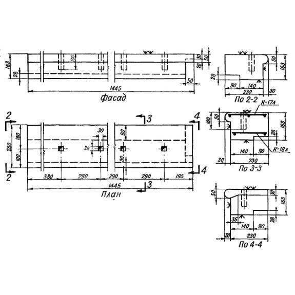
О товаре:
- Длинна: 1445 мм.
- Ширина: 260 мм.
- Высота: 163 мм.
- Вес: 133 кг.
- ГОСТ, Серия: Серия ИИ 01-02 скачать
- Объем бетона: 0,053 м3
- Геометрический объем: 0,0612 м3
Стандарт изготовления изделия: Серия ИИ 01-02
Вкладыши Л 10 (ИИ 01-02) представляют собой высокопрочные унифицированные строительные материалы. По внешнему виду элементы напоминают прямоугольные бруски. В поперечном сечении изделие оснащено не большим круглым выступом, проходящим по продольной торцевой грани и углублением размером 13 мм, расположенным снизу. Конструкции отличаются высоким качеством лицевых поверхностей. Дополнительно в теле элемента могу присутствовать квадратные углубления, необходимые для размещения перил.
Применяются унифицированные вкладыши в сфере гражданского строительства при возведении жилых домов, общественных зданий и административно-бытовых сооружений. Конструкции используется при обустройстве лестничных клеток и прилётов, необходимых для комфортного перемещения людей между этажами. Изделия укладываются в составе лестничного марша в качестве дополнительного элемента. Строительный материал очень устойчив к различного рода нагрузкам, обладает высокой степенью сопротивляемости к истираемости, а также продолжительным эксплуатационным сроком. При разработке элементов учитывались требования и рекомендации НиТУ 3-49.
Маркировочные обозначения
Для упрощения обнаружения конструкций на складских территориях введены специальные маркировки. Их цель показать главные характеристики строительных материалов. Совокупность символов Л 10 (ИИ 01-02) имеет следующую расшифровку:
1. Л - тип конструкции – вкладыш;
2. 10 - порядковый номер типоразмера элемента.
Не допускается внесение произвольных изменений в маркировочные знаки. Дополнительно можно отражать массу конструкции, дату производства и штамп отдела технического контроля.
Особенности производства
С подробным описанием и порядком изготовления вкладышей Л 10 (ИИ 01-02) можно ознакомиться в нормативном документе Серии ИИ 01-02. По условиям регламента изготовление должно осуществляться в стальных опалубочных формах для обеспечения высокого качества готовой продукции, а также точного соответствия геометрическим пропорциям, представленным на рабочих чертежах. В качестве главного материала используется бетон марки М200, морозостойкость и водонепроницаемость которого подбираются в соответствии с эксплуатационными условиями и климатическими особенностями региона строительства.
Для армирования конструкций используются сварные каркасы, собираемые с помощью контактной точечной сварки. Сбор каркасов должен осуществляться с соблюдением требований ТУ 73-50 и выполняться из холоднотянутой проволоки с пределом текучести 4500 кг/см2. Для обеспечения продолжительного эксплуатационного срока конструкций и предотвращения раннего развития коррозионных образований важно выдерживать проектную величину защитного слоя до поверхности рабочего армирования.
Перед поставкой конечному потребителю конструкции отправляются на приемосдаточные испытания, результаты которых заносятся в сертификаты, предоставляемые потребителю вместе с партией готовой продукции. Не допускается наличие оголенного армирования, сколов, трещин и раковин на поверхности конструкции.
Транспортировка и хранение
Складирование и транспортировка вкладышей Л 10 (ИИ 01-02) должны осуществляться с безукоризненным соблюдением правил и норм по технике безопасности. Укладка должна проводиться по схемам, предотвращающим вероятность возникновения механических повреждений. Погрузочно-разгрузочные работы следует осуществлять, используя специализированную технику, оборудованную захватными механизмами. Запрещён сброс, навал и бой конструкции. Все некондиционные элементы должны складываться отдельно.

