О товаре:
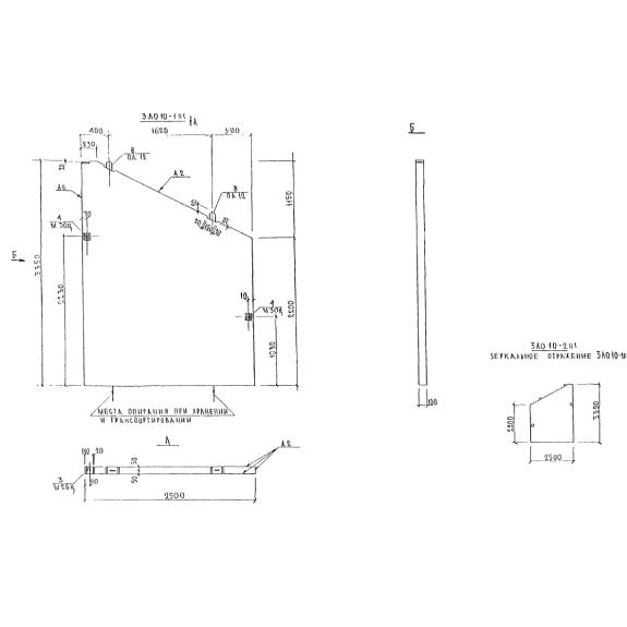
- Длинна: 2500 мм.
- Ширина: 100 мм.
- Высота: 3350 мм.
- Вес: 1700 кг.
- ГОСТ, Серия: Альбом 3РС 19-103 скачать
- Объем бетона: 0,71 м3
- Геометрический объем: 0,8375 м3
Стандарт изготовления изделия: Альбом 3РС 19-103
Ограждения лестничные 3ЛО 10-2 н-1 (Альбом 3РС 19-103) являются высокопрочными строительными материалами. Они имеют прямоугольную форму поперечного сечения. При рассмотрении изделий сбоку видно, что они представлены в качестве прямоугольных элементов со скосом верхней продольной грани, придающей изделиям сходство с трапецией. Для упрощения погрузочно-разгрузочных работ в конструкции заложены специальные петли.
Применяются лестничные ограждения при строительстве жилых домов с узким шагом несущих стен и жилых блок-секций. Элементы устанавливаются при обустройстве лестничных клеток в качестве ограждения, препятствующего падению людей при перемещении между этажами. Они также используются для обустройства крылец, строящихся перед входом в здание. При разработке и расчетах строительных материалов учитывались требования и рекомендации СНиП II-3-79 и СНиП 2.03.01-84. Минимальный предел огнестойкости конструкций составляет 1 час.
Маркировочные обозначения
Важно наносить на изделия специальные маркировочные знаки, целью которых является отражение ключевых характеристик. В совокупности символы 3ЛО 10-2 н-1 (Альбом 3РС 19-103) имеют следующую расшифровку:
1. 3 - принадлежность к альбому 3РС 19-103;
2. ЛО - тип конструкции - лестничное ограждение;
3. 10 - порядковый номер типоразмера элемента;
4. 2 - индекс типоразмера, характеризующий дополнительные конструктивные особенности, такие как зеркальное исполнение конструкций и другие.
5. н-1 - отличие по закладным деталям.
Запрещено вносить произвольные изменения в маркировочные обозначения. Допускается отражать дату производства, массу и штамп отдела технического контроля.
Особенности производства
Подробный процесс производства лестничных ограждений 3ЛО 10-2 н-1 (Альбом 3РС 19-103) изложен в нормативном документе Альбоме 3РС 19-103. Для сохранения точных геометрических пропорций и обеспечения высокого качества лицевых поверхностей изготовление должно проходить в стальных опалубках в горизонтальном положении. Главным сырьем по условиям регламента выступает тяжелый бетон класса В22,5, имеющий среднюю плотность в размере 2300 кг/м3. Физико-химические показатели бетонной смеси, такие как морозостойкость и водонепроницаемость, согласуются отдельно по условиям климата и должны быть не менее F150 и W2.
Армируются конструкции каркасами, собираемыми с помощью контрактной точечной сварки в местах пересечения стержней по ГОСТ 14098-91. Для их производства используется горячекатаная сталь классов AII и AIII по ГОСТ 5781-82. Дополнительно применяется холоднотянутая проволока класса BI по ГОСТ 6727-80 с диаметром прутков 5 мм. Арматурные изделия должны отвечать требованиям ГОСТ 10922-92. Монтажные петли, упрощающие процесс установки изделий, производятся из стали класса AI марок Ст3сп2 и СТ3пс2. Закладные детали должны изготавливаться из полосовой стали марки Ст3кп2 по ГОСТ 380-88 с гарантией свариваемости. Обязательна обработка металлических составляющих специальными противокоррозионными составами.
Транспортировка и хранение
Складирование и транспортировка железобетонных лестничных ограждений 3ЛО 10-2 н-1 (Альбом 3РС 19-103) должны осуществляться с соблюдением техники безопасности и требований Альбома 3РС 19-103. Укладка конструкций должна производиться в вертикальном положении на специальных деревянных опорах, размещаемых в местах, прописанных на рабочих чертежах нормативно правовой документации. Важно беречь конструкции от возникновения любых механических повреждений на всех этапах работы с железобетонными изделиями.

