О товаре:
- Длинна: 8980 мм.
- Ширина: 300 мм.
- Высота: 805 мм.
- Вес: 2500 кг.
- ГОСТ, Серия: Серия ПК 01-05 скачать
- Объем бетона: 1 м3
- Геометрический объем: 2,1687 м3
Стандарт изготовления изделия: Серия ПК 01-05
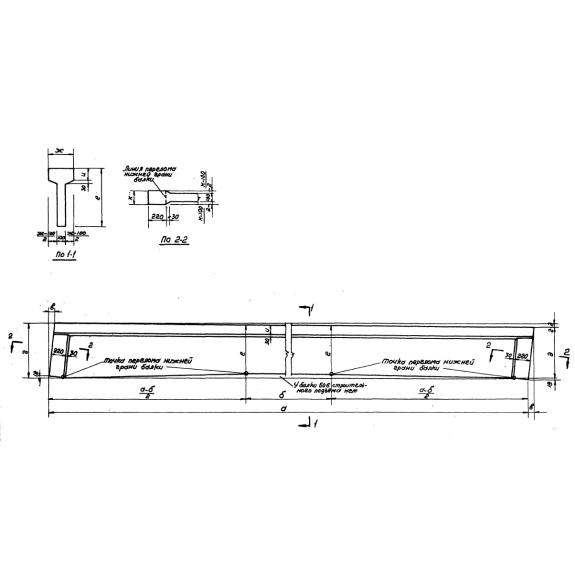
Балки БО 9-2 (ПК 01-05) представляют собой высокопрочные строительные материалы. По условиям Серии ПК 01-05 запроектировано два типа конструкции: односкатные и двускатные балки. Односкатные элементы имеют прямоугольную форму с тавровым поперечным сечением, двускатные по внешнему виду напоминает треугольник с таким же тавровым поперечным сечением. Дополнительно на теле элементы присутствуют закладные детали, предназначенные для крепления со смежными элементами каркаса здания.
Применяются унифицированные балки при строительстве производственных и общественных сооружений, а также здание различного назначения. Конструкция используется для формирования несущего каркаса предназначенного для обустройства крыши из твердых покрытий с использованием рулонных материалов. Допускается эксплуатация в зданиях, имеющих пролет от 6 до 15 м, с шагом колонн 6 м. Конструкция разработана для настила из крупнопанельных плит, подходит для укладки на железобетонные прогоны. Элементы могут иметь один или два ската, и в зависимости от требуемых условий позволяют расширить возможность выбора необходимые конструкции под нужды определенного типового проекта. При расчёте и разработке строительных материалов учитывались требование НИТУ 123-55 и И 122-50. Допускается усиление балок по требованиям типового проекта.
Маркировочное обозначение
Совокупность символов БО 9-2 (ПК 01-05) имеет следующую расшифровку:
1. БО - тип конструкции - балка (БО - односкатная; БД - двускатная);
2. 9 - величина пролета (м);
3. 2 - индекс, характеризующий несущую способность;
Запрещается вносить произвольные изменения в маркировочные символы.
Особенности производства
Со всеми тонкостями производственного процесса балок БО 9-2 (ПК 01-05) можно ознакомиться в Серии ПК 01-05. Для гарантии соблюдения точных геометрических пропорций и отсутствия отклонений, следует использовать стальные опалубочные формы. Это позволит соблюсти все требования рабочих чертежей. Для производства используется бетон марки М200 и М300. Величина морозостойкости и водонепроницаемости подбирается в соответствии с климатическими условиями региона строительства. Для предотвращения коррозионных образований важно обеспечить проектную толщину защитного бетонного слоя перед заливкой смеси в опалубку. Для этого каркасы устанавливаются на специальных фиксаторах.
Для производства каркасов и сеток используется основная рабочая арматура из горячекатаной стали марки Ст5 периодического профиля. Поперечные сетки и другая арматура приняты также из марки Ст5 и круглого профиля стали марки Ст3. Для закладных деталей используется фасонный листовой прокат марки Ст3. Допускается стержни диаметром 6 мм заменять холоднотянутой проволокой диаметром 5 мм. Растянутые стержни стоит соединять с помощью дуговой сварки, все остальные рекомендуется скреплять контактной точечной электросваркой. Обязательна обработка металлических закладных деталей специальными составами, предотвращающими развитие коррозионных образований.
Перед поставкой заказчику обязательно прохождение приемосдаточных испытаний.
Транспортировка и хранение
Складирование и транспортировку балок БО 9-2 (ПК 01-05) необходимо осуществлять с соблюдением техники безопасности. При перевозке необходимо в обязательном порядке использовать деревянные подкладки, служащие для придания балки горизонтального положения. Подъём необходимо производить в рабочем положении, плавно без рывков. Рекомендуется применять клещевые захваты, пропускаемые через специальные отверстия в стенках балки. Важно беречь конструкций от возникновения любых механических повреждений.

