О товаре:
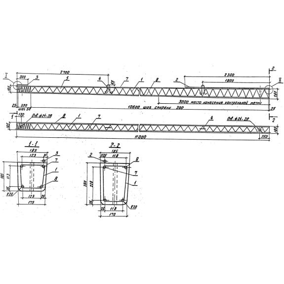
- Длинна: 11000 мм.
- Ширина: 185 мм.
- Высота: 280 мм.
- Вес: 1125 кг.
- ГОСТ, Серия: ГОСТ 23613-79 скачать
- Объем бетона: 0,45 м3
- Геометрический объем: 0,5698 м3
Стандарт изготовления изделия: ГОСТ 23613-79
Стойки железобетонные СВ 110-2,5 повсеместно используют в различных сферах строительства и теплоэнергетики. Без этих элементов многие направления не могут быть освоены в полной мере, так как высокая прочность и надежность железобетона пока не нашла своей достойной замены. Именно поэтому стойки СВ 110-2,5 для опор ЛЭП применяют в обязательном порядке. Это конические железобетонные столбы переменного сечения, которые используют для опоры линий электропередач.
Применение только деревянных опор экономически не оправдано, так как дерево даже со специальной обработкой служит не так долго, как железобетон, при этом стоит отметить, что данный материал может быть использован на "сложных" грунтах и в агрессивных условиях эксплуатации.
1.Варианты написания маркировки изделий.
Стойки СВ 110-2,5 , изготавливаемые из железобетона, изготавливают согласно ГОСТ 23613-79 все условия обязательны к соблюдению. Маркировка включает специальное обозначение, где указывают тип изделия и его размерные группы. Написание строго не регламентируется и может быть выполнено несколькими вариантами:
1. СВ 110-2,5;
2. СВ 110-3,2.
2.Основная сфера применения.
Железобетонные стойки вибрированные СВ 110-2,5 разрабатывают и используют при прокладке и обустройстве линий электропередач напряжением от 0,4-10 кВт, а также при проведении монтажных работ осветительных электросетей. Применять данные изделия можно в различных средах, в том числе в условиях повышенной сейсмоактивности (вплоть до 7-9 баллов по шкале Рихтера), а также в ветреных районах l-lV типа, а также в условиях гололеда.
Заглублять переходные стойки СВ 110-2,5 можно в различные грунты, в том числе с повышенной кислотностью. Так как стойки проходят специальную обработку, то они служат достаточно долго, не разрушаясь и не теряя своих эксплуатационных характеристик. СВ 110-2,5 применяют для таких типов опор, как анкерно-угловые и промежуточные, на которые подвешивают провода воздушных ЛЭП.
Железобетонные столбы воспринимают существенные нагрузки, в основном это вырывающие деформации, поэтому для технологии изготовления данных элементов используют специальные бетоны, а также для соблюдения требований по прочности и долговечности стойки СВ 110-2,5 изготавливают унифицированными. Заявлен срок эксплуатации вибрированных стоек не менее чем 50-75 лет. Кроме этого, железобетонные стойки в зависимости от условий и требований проекта совместно используют такие изделия, как анкера цилиндрические АЦ-1 и плиты опорно-анкерные тип П.
3.Обозначение маркировки изделий.
Стойки железобетонные для опор ЛЭП СВ 110-2,5 маркируют согласно действующему Стандарту – ГОСТ 23613-79 указывают:
1. СВ - стойки железобетонные;
2. 110- длина стойки, в дц.;
3. 2, 5- изгибающий момент, в тс*м.
Дополнительно должны быть указаны такие параметры, как:
1. Расчетный изгибающий момент;
2. Геометрический объем – 0,5698 ;
3. Масса изделия – 1125 ;
4. Объем бетона на одну стойку составляет 0,45 .
Маркировка наносится на боковую сторону стойки несмываемой черной краской, дополнительно наносят дату изготовления партии, товарный знак производителя и массу элемента.
4.Материалы и характеристика изделий.
Стойки железобетонные изготавливают по технологии вибропрессования. За счет высокого уплотнения бетонной смеси, изделия получают с высокими прочностными характеристиками. В качестве сырья используют тяжелые бетоны, мелкофракционный песок и гранитный щебень. Все это позволяет повысить морозостойкость и надежность стоек СВ 110-2,5 при длительной эксплуатации.
Основные характеристики бетона по ГОСТ 26633, а также в соответствии с установленными требованиями ТУ 5863-002-00113557-94:
1. Марка по прочности на сжатие – М300;
2. Класс бетона по прочности – не менее В25;
3. Морозостойкость – 200 циклов замораживания-размораживания, применение может осуществляться в условиях критически низких температур, до -55 градусов по Цельсию включительно;
4. Водонепроницаемость – марка W4, дополнительно выполняют гидрофобную защиту.
Для обеспечения прочности СВ 110-2,5 армируют согласно ГОСТ 23613-79. В качестве арматуры используют предварительно напряженные стальные прутки класса А-III, Ат-I, Ат-VI, Ат-V диаметром 10-14 мм. (некорродирующий металл для внешних петель и закладных деталей – болты, при помощи которых крепят изделия к фундаменту). В нижней части изделия используется проволочная арматура с обратной конусностью. Сталь и бетон обрабатывают специальными антикоррозионными составами.
5.Хранение и транспортировка.
Стойки вибрированные СВ 110-2,5 транспортируют при помощи спецтранспорта. Все торцы должны быть ориентированы в одну сторону. Машинная норма составляет – 17 изделий. При перевозке все элементы надежно фиксируют и прокладывают деревянными досками. Хранят стойки в штабелях, также прокладывая послойно деревянные доски или подкладки.

