Стандарт изготовления изделия: Серия КБК
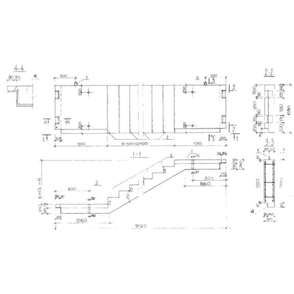
Лестничные марши ЛМ 15-10,5 представляют собой унифицированные железобетонные изделия, имеющее ряд конструктивных особенностей и «Z» - образную форму. Центральная часть элемента выполнена в виде прямоугольной плиты, оснащенной выступами - ступенями, необходимыми для перемещения людей. Торцевые стороны оборудованы плоскими плитами - полуплощадками, обеспечивающими связь ступенчатого марша в составе пролета здания.
Применяются высокопрочные лестничные марши в гражданском строительстве при возведении каркасных жилых домов и общественных сооружений. Изделия используются для обустройства лестничных пролетов, обеспечивающих связь между этажами и позволяющих комфортно перемещаться людям. Наличие полуплощадок в составе конструкции в значительной степени ускоряет процесс монтажа элементов и сдачу объектов в эксплуатацию. Изделия для устройства лестниц прекрасно подходят для помещений с высотой этажа 2,8 и 3 м, а также общественных построек 3,3 и 3,6 м.
Маркировочные обозначения
Принятые проектными институтами маркировочные обозначения, упрощающие поиск необходимых строительных материалов, разрабатывались с учетом требований ГОСТ 23009-78. Совокупность символов ЛМ 15-10,5 имеет следующую расшифровку:
1. ЛМ - тип строительного изделия - лестничный марш;
2. 15 - высота подъема (дм);
3. 10,5 - ширина (дм).
Запрещено изменять маркировочные знаки, так как это может привести к ошибкам при подборе строительных материалов.
Особенности производства
Требования к материалам, поэтапный процесс производства и другие рекомендации подробно прописаны в Серии КБК. По условиям нормативного документа для производства железобетонных лестничных маршей ЛМ 15-10,5 необходимо использовать тяжелый бетон класса В22,5 по прочности на сжатие. В зависимости от климатических особенностей в регионе строительства подбираются показатели водонепроницаемости и морозостойкости в соответствии со СНиП 2.03.11-85.
Для армирования маршей используются стержни горячекатаной стали периодического профиля классов AIII, А400 (А400с) соответствующие ГОСТ 5781-82. Дополнительно применяется проволока класса В500 (BpI) по ГОСТ 6727-80. Мероприятия, направленные на защиту металлических составляющих от коррозионных образований необходимо производить в соответствии со СНиП 2.03.11-85.
Важно обеспечить точные геометрические пропорции конструкций в соответствии с прописанными на рабочих чертежах значениями. Верхние лицевые поверхности должны отвечать категории А2, лицевые боковые и нижние - А3. Поверхности, являющиеся не лицевыми должны отвечать категории А7. Допускается изменение категории по требованию заказчика при наличии необходимости обеспечения дополнительной отделки.
Транспортировка и хранение
Складирование и перевозку лестничных маршей ЛМ 15-10,5 ввиду их конструкционных особенностей следует осуществлять в положении «на ребро». Толщина подкладочного материала между рядами должна составлять минимум 30 мм. Размещать инвентарные прокладки следует в местах расположения строповочных отверстий (петель). Важно безукоризненно соблюдать правила и нормы строительных регламентов и технику безопасности, а также беречь конструкции от возникновения механических повреждений. Погрузочно-разгрузочные работы должны осуществляться с использованием специализированной техники, оборудованной захватными механизмами.

