О товаре:
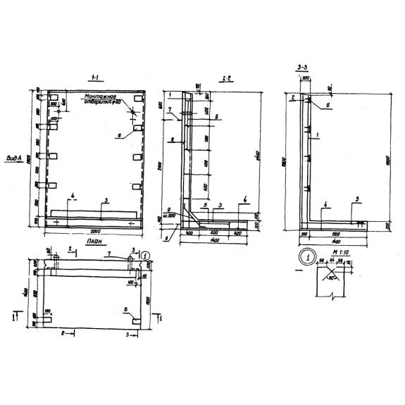
- Длинна: 2000 мм.
- Ширина: 1400 мм.
- Высота: 2800 мм.
- Вес: 3875 кг.
- ГОСТ, Серия: Серия 3.820-6 скачать
- Объем бетона: 1,55 м3
- Геометрический объем: 7,84 м3
Стандарт изготовления изделия: Серия 3.820-6
Открылки Г-образные портального оголовка ОГ 28 – это типовые железобетонные конструкции, представляющие собой две плиты (одна из которых больше по толщине, и высоте), которые перпендикулярно соединяются в нижнем основании, образовывая, таким образом, Г-подобную подпорку. Портальные оголовки это крайние элементы водоводных труб, работающие по принципу вертикальных стен, удерживающих откос насыпи на выходе из канала. Именно для надежности такой системы и были разработаны унифицированные открылки. Их конструкция идеально подходит для долгосрочной работы под высоким давлением насыпи, а высокие эксплуатационные характеристики позволяют не беспокоиться о надежности установки.
1. Варианты маркировки
Маркировка ЖБ-материалов нужна, во-первых, для ускорения процесса сортировки на складах и, во-вторых, для быстрого ориентирования в наименованиях номенклатурного ряда при составлении различной технической документации и последующего ознакомления с ней. Существуют такие варианты написания марки открылка портальных оголовков для водовода:
1. ОГ 28;
2. ОГ-28.
2. Основная сфера применения
Г-образный открылок портального оголовка ОГ 28 – это строительный элемент, без которого не обойтись в сфере гидромелиоративного строительства. Оросительные и осушительные системы, искусственные садки для рыб, проведение каналов и сооружения опорных стенок – данные изделия пользуются большим спросом, когда речь идет о перенаправлении, сохранении или отводе водных масс. Гидромелиоративное строительство крайне важно для сельского хозяйства любой страны. Все элементы системы водовода должны отвечать высоким стандартам качества и иметь способность работать на износ. Поэтому типовые железобетонные изделия для таких систем обладают высокой прочностью, водо- и трещиностойкостью, а также исключительной долговечностью.
3. Обозначение маркировка изделия
Открылки Г-образные ОГ 28 маркируются по правилам, прописанным в действующей Серии 3.820-6, типовом проекте, содержащем указания к изготовлению унифицированных сборных железобетонных изделий для водохозяйственного строительства. Марка расшифровывается довольно просто:
1. ОГ – открылок Г-образный портального оголовка;
2. 28 – высота изделия в дм.
Однако помимо высоты, выбор таких материалов зависит и от других габаритных размеров. Например, два открылка с одинаковой высотой могут отличаться шириной. Ниже представлены основные показатели конкретно для данного наименования:
Длина = 2000;
Ширина = 1400;
Высота = 2800;
Вес = 3875;
Объем бетона = 1,55;
Геометрический объем = 7,84.
4. Изготовление и основные характеристики
Технология изготовления открылка портального оголовка также регламентируется Серией 3.820-6. Изготовление осуществляется по принципу поточно-агрегатного метода, когда каждый этап производства реализуется на отдельном посту. До начала всех работ следует заготовить формы, элементы армирования и, конечно, бетонную смесь. В соответствии со стандартом выпуска ЖБИ для водохозяйственного строительства на заводах применяется тяжелый бетон марки М200. Для усиления конструкции служат плоские сетки и металлические каркасы из стали А-І и А-ІІІ. Также в ход идут отдельные стержни тех же классов стали, предусмотренные проектом закладные элементы и строповочные петли для удобства в дальнейшем проведении погрузочных и монтажных манипуляций.
Все элементы армирования устанавливаются в формы и фиксируются там в проектном положении. Затем подается бетон: он должен покрывать каркас вместе с дополнительными деталями защитным слоем толщиной в 20 мм. (Это не относится только к строповочным петлям). После усадки бетона и его равномерного распределения, заготовка отправляется на термическую обработку, во время которой смесь сушится и достигает положенной отпускной прочности. Заключительными этапами производства являются распалубка готовых изделий и прохождение ими ряда приемо-сдаточных испытаний.
5. Транспортировка и хранение
Складирование блоков Г-образных открылок ОГ 28 регламентируется не менее строго, чем процесс изготовления. Изделия должны храниться на выровненной чистой поверхности. В связи с особенностями конструкции уложить их в штабеля не представляется возможности. Поэтому материалы данного типа хранятся в один ряд на толстых деревянных досках, защищающих их от трения. При транспортировке особое внимание уделяется двум ключевым моментам: мягкой погрузке с задействованием специального подъемного оборудования и надежной фиксации изделий в кузове. Там блоки также прокладывают деревянными досками во избежание малейших механических повреждений. Кроме того, важно соблюдать зазоры между ЖБИ и бортами кузова, а также беречь открылки от опрокидывания или сталкивания друг с другом.

