О товаре:
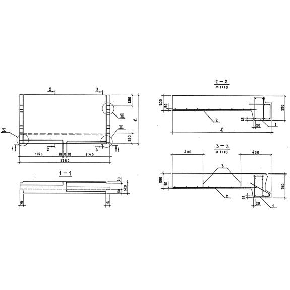
- Длинна: 2380 мм.
- Ширина: 1900 мм.
- Высота: 320 мм.
- Вес: 1900 кг.
- ГОСТ, Серия: ГОСТ 9818-85 скачать
- Объем бетона: 0,76 м3
- Геометрический объем: 1,447 м3
Стандарт изготовления изделия: ГОСТ 9818-85
Лестничные площадки плоские 1ЛП 24-19-4 (ГОСТ 9818-85) важный элемент в строительстве лестничных конструкций. Железобетон - универсальный строительный материал, который сочетает в себе работу бетона и стали. Лестничные изделия изготавливаются по действующим Стандартам, и должны иметь высокие эксплуатационные характеристики. Благодаря высокой прочности, надежности и долговечности их применение допускается в гражданских строениях.
Лестничные площадки 1ЛП 24-19-4 (ГОСТ 9818-85) – это специальные плоские платформы, изготавливаются по установленным размерам и применяются для обустройства лестничных клеток в зданиях различного назначения. Данные конструктивные элементы располагаются на разных уровнях перпендикулярно между собой. Прямоугольные элементы имеют в своей конструкции специальные выемки, которые используются для стыковки лестничного марша определенной толщины (это 1050 и 1200 мм.). Высокая безопасность – определяющая характеристика, по которой выбираются ЖБИ-изделия для гражданского строительства.
1.Варианты написания маркировки.
Маркирование плоских площадок 1ЛП 24-19-4 (ГОСТ 9818-85) производится согласно ГОСТ 9818-85 и включает в основное обозначение тип изделия, размеры и предел вертикальной нагрузки. Условные буквенно-цифровые знаки могут быть записаны следующими вариантами:
1. 1ЛП 24-19-4;
2. 1ЛП 24-19-4 к;
3. 1ЛП 24-19-4 л;
4. 1ЛП 24-19-4 лк;
5. 1ЛП 24-19-4 лш;
6. 1ЛП 24-19-4 ш.
2.Основная сфера применения.
Сфера использования данных изделий достаточно широка. Плоские площадки 1ЛП 24-19-4 (ГОСТ 9818-85) применяют для обустройства лестничных конструкций жилых, общественных и промышленных зданий с этажами высотой до 2,8 метра. Строения могут быть возведены из любого строительного материала: кирпич, блоки, панели и прочие. Площадки данного типа монтируются как внизу, так и вверху лестничного марша, также при помощи этих элементов производится разделение лестницы на ходовые зоны или части, например, при изменении направления движения вверх. Это также делается для повышения безопасности. Через каждые 18 ступеней должна быть обустроена переходная площадка, далее – новый марш. 1ЛП 24-19-4 (ГОСТ 9818-85) применяется для лестничных маршей плоских тип ЛМ (данные марши не имеют фризовых ступеней). Размеры должны соответствовать площадке.
1ЛП 24-19-4 (ГОСТ 9818-85) применяются в зданиях с высокой пропускной способностью. Благодаря значительной несущей способности готовое сооружение выдерживает значительные деформирующие усилия, а также статические, динамические и ударные нагрузки – не менее 3,5 кПа., поэтому широкое применение площадок данного вида имеет полностью экономическое и практическое обоснование.
3.Обозначение маркировки 1ЛП 24-19-4 (ГОСТ 9818-85) .
Обозначают плоские площадки согласно ГОСТ 9818-85, и указывают цифробуквенной комбинацией тип изделия и основные размеры. Рассмотрим маркировку 1ЛП 24-19-4 (ГОСТ 9818-85) , где соответственно указаны:
1. 1 – группа рельефа изделия, плоская;
2. ЛП – лестничная площадка;
3. 24 – длина платформы, указывается в дц.;
4. 19 – ширина, дц.;
5. 4 – вертикальная унифицированная нагрузка, в кПа;
6. Дополнительными буквами указывают тип поверхности – "ш"-шлифованная, "м"-мозаичная, "г"-глянцевая, "к" - облицованная керамической плиткой.
Знаки наносят на боковую грань черной краской, также указываются дата производства изделия и его масса.
Укажем ряд параметров, по которым можно охарактеризовать лестничные площадки тип ЛП:
1. Длина – 2380 ;
2. Ширина – 1900 ;
3. Высота – 320 ;
4. Масса – 1900 ;
5. Геометрический объем – 1,447 ;
6. Объем бетона на одно изделие – 0,76 .
4.Материалы для изготовления и их характеристики.
Основной материал для изготовления – бетон тяжелых марок или керамзитобетон (с использованием пористых заполнителей). Пористые материалы применяются для снижения массы изделия. Технология изготовления ЛП – вибропрессование. За счет высокого уплотнения смеси изделие обладает высокой механической прочностью и долговечностью. Марка бетона по прочности должна соответствовать пределам М200.
Все плоские площадки тип 1ЛП 24-19-4 (ГОСТ 9818-85) подвергают армированию. Это выполняется для получения более высокой прочности и для повышения общей несущей способности. Для стального каркаса тип КР5 используют стальную проволоку унифицированного диаметра из стали класса A-III и Вр-1. В тело платформы дополнительно закладывают монтажные петли тип П1 - 4 шт. Металлические детали подвергают антикоррозионной обработке.
5.Транспортировка и хранение.
Транспортирование площадок 1ЛП 24-19-4 (ГОСТ 9818-85) производится спецтранспортом. Укладывают площадки горизонтально, прокладывая каждый слой деревянными элементами, также все изделия должны быть надежно закреплены. Хранение осуществляется в штабелях высотой не более 2,5 м.

